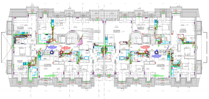
Construction de 30 logements collectifs



Construction d’un ensemble résidentiel de type normand de 30 logements collectifs de 4 étages sur sous-sol répartis sur 2 050 m² de surface utile.

SEFRI CIME

Etude d’exécution des lots plomberie, chauffage collectif, ventilation et bilan thermique.
Calcul des déperditions de base.

ENTREPRISE LARCHER